| Kód produktu | KIT FOLLOW ME M 8.0 |
|---|---|
| Hmotnost | 267 kg |
| Dostupnost | Skladem |
| Výrobce | CAIS |
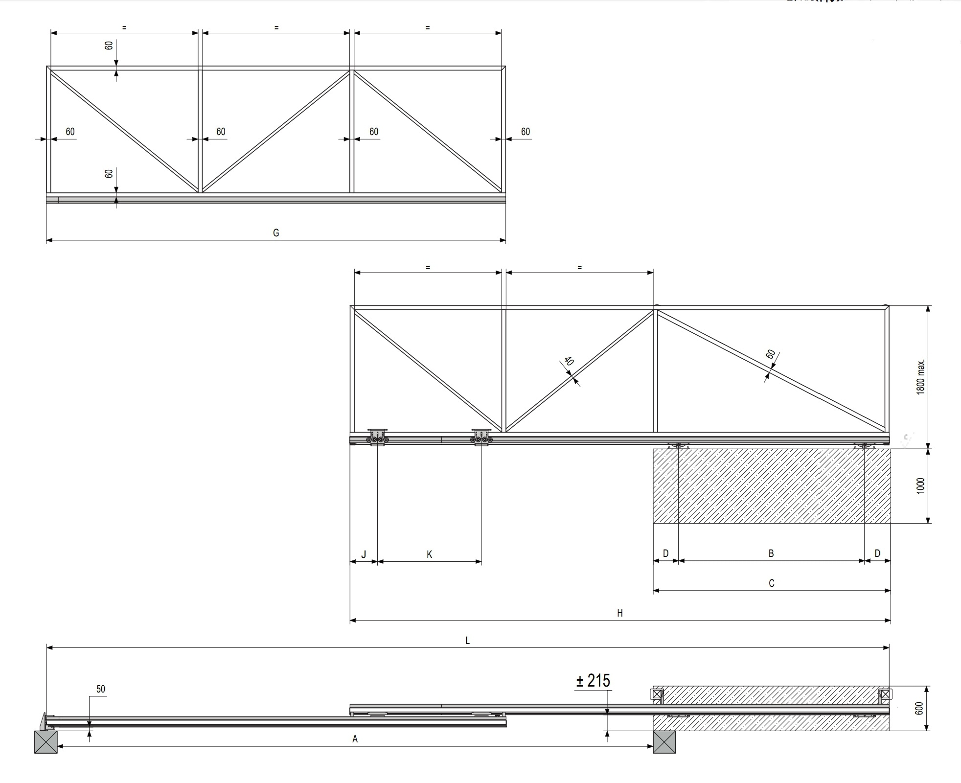
Teleskopické posuvné brány
Sada KIT FOLLOW ME "M" 8.0 je kompletni sada kování pro zhotovení samonosné teleskopické brány do průjezdu max. 8,0m
- rám brány neni soucástí
- soucástí jsou šedé prvky na obrázku které jsou pozinkované

